polyfunkční objekt
název projektu:
novostavba administrativní budovy
lokalita:
Brno, Čechyňská
projekt:
2016-2019
realizace:
2020-2022
autoři:
David Kudla
Oldřich Fikejs
Místo, které bylo prostorově dostatečně velké a vhodné pro výstavbu nového objektu, bylo bohužel v územním plánu zaznačeno jako průmyslová stabilizovaná plocha. Navíc bylo toto území zatíženo regulačním plánem. Všechny tyto souvislosti dávaly jednoznačné stanovisko, že zde nelze nic postavit.
Na základě podrobné analýzy a právního výkladu územního plánu se nám podařilo prosadit dům o velikosti, kterou investor za dané situace ani neočekával. Objekt jsme zformovali do vhodných proporcí, aby dobře doplnil okolní zástavbu. Mezi stávající administrativní budovou a novým objektem jsme vytvořili živý parter obklopený obchodními jednotkami a službami přiměřené velikosti kancelářského areálu.
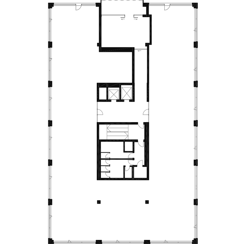
V centru budovy je umístěno betonové jádro, kolem něhož je volná kancelářská plocha. V horním ustupujícím podlaží se nacházejí business bytové jednotky s nádherným výhledem na historické panorama centra Brna. Díky velké přilehlé parkovací ploše jsme mohli vytvořit polozapuštěný suterén s prosvětlovacími anglickými dvory a zvětšit tak užitnou plochu kancelářské budovy.
polyfunkční objekt
název projektu:
novostavba administrativní budovy
lokalita:
Brno, Čechyňská
projekt:
2016-2019
realizace:
2020-2022
autoři:
David Kudla
Oldřich Fikejs
Místo, které bylo prostorově dostatečně velké a vhodné pro výstavbu nového objektu, bylo bohužel v územním plánu zaznačeno jako průmyslová stabilizovaná plocha. Navíc bylo toto území zatíženo regulačním plánem. Všechny tyto souvislosti dávaly jednoznačné stanovisko, že zde nelze nic postavit.
Na základě podrobné analýzy a právního výkladu územního plánu se nám podařilo prosadit dům o velikosti, kterou investor za dané situace ani neočekával. Objekt jsme zformovali do vhodných proporcí, aby dobře doplnil okolní zástavbu. Mezi stávající administrativní budovou a novým objektem jsme vytvořili živý parter obklopený obchodními jednotkami a službami přiměřené velikosti kancelářského areálu.
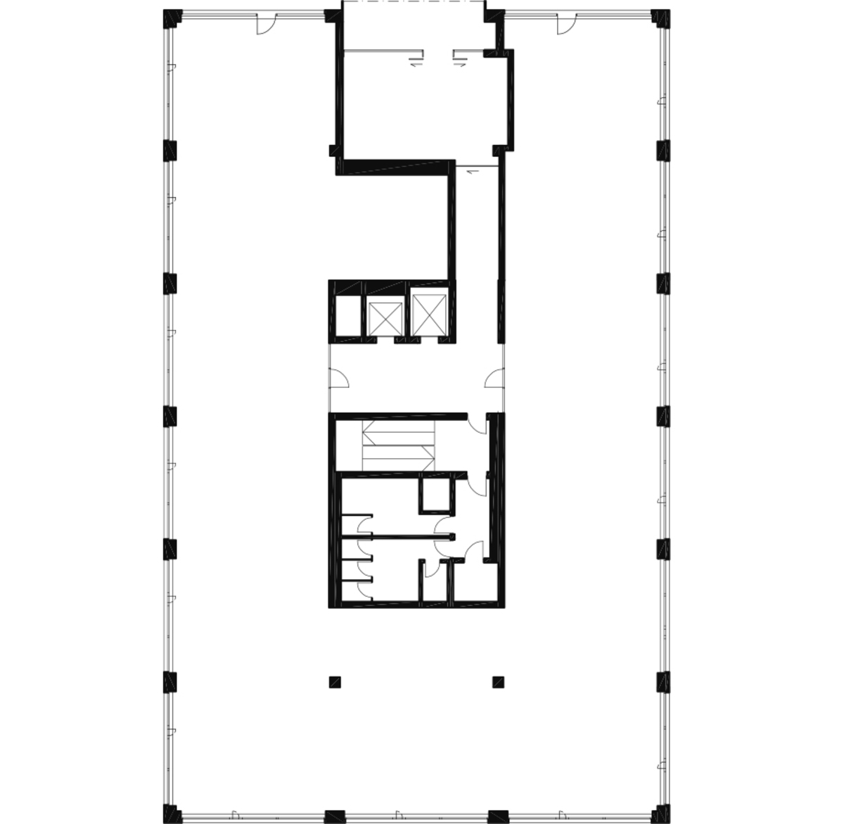
V centru budovy je umístěno betonové jádro, kolem něhož je volná kancelářská plocha. V horním ustupujícím podlaží se nacházejí business bytové jednotky s nádherným výhledem na historické panorama centra Brna. Díky velké přilehlé parkovací ploše jsme mohli vytvořit polozapuštěný suterén s prosvětlovacími anglickými dvory a zvětšit tak užitnou plochu kancelářské budovy.

















