návštěvnické centrum
návštěvnické centrum
Olšina
studie:
2015
realizace:
2020
autoři:
David Kudla
Miloš Ryšavý
Michal Šírek
autor projektu:
Arch.Design, s.r.o.
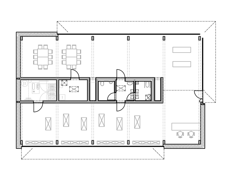
Dům prezentující unikát zdejší přírody nemůže být z logiky věci jiný, než v nejvyšším ekologickém standardu s nízkoenergetickým statutem. Proto byla pro obvodový plášť použitá výhradně dřevěná konstrukce s ekologickým izolantem. Tato slupka tímto způsobem splňuje nejlepší tepelně technické vlastnosti, protože sám dřevěný konstrukční materiál má velký tepelný odpor. Ve spojitosti s tepelným izolantem dostáváme velmi kvalitní izolační obvodový plášť.
Naopak má takto stavebně řešený dům minimální akumulační schopnost, takže velmi rychle reaguje na výkyvy počasí. Zvláště v létě se přes den velmi rychle přehřeje a musí se neekologicky dochlazovat. Z tohoto důvodu jsme doprostřed objektu, daleko od ochlazovaného obvodového pláště, umístili betonový černý kvádr ležící zcela na tepelné izolaci, který zajišťuje tepelnou stabilitu. Tímto doplněním funguje energeticky dům výborně.
Zároveň betonový kvádr s obtisknutou strukturou svisle kladených dřevěných prken, v sobě ukrývá sociální zázemí, sklady a všechny potřebné technologie vydávající hluk, což díky betonové hmotě je velmi dobře odstíněno. Vložený objekt celý prostor rozděluje na vstupní, výstavní a výukovou část. Stává se jakýmsi sarkofágem umístěným v chrámovém prostoru dřevěné obvodové konstrukce. Při samotném doteku rukou necítíte chladnou podobu betonu, ale máte pocit, že se dotýkáte nějakého plastového odlitku, který má teplotu vnitřního prostoru. Beton se tak stal naprostou součástí celé stavby, nechová se typicky, ale zcela se přizpůsobil samotnému domu, i co se povrchové teploty týče.
návštěvnické centrum
návštěvnické centrum
Olšina
studie:
2015
realizace:
2020
autoři:
David Kudla
Miloš Ryšavý
Michal Šírek
autor projektu:
Arch.Design, s.r.o.
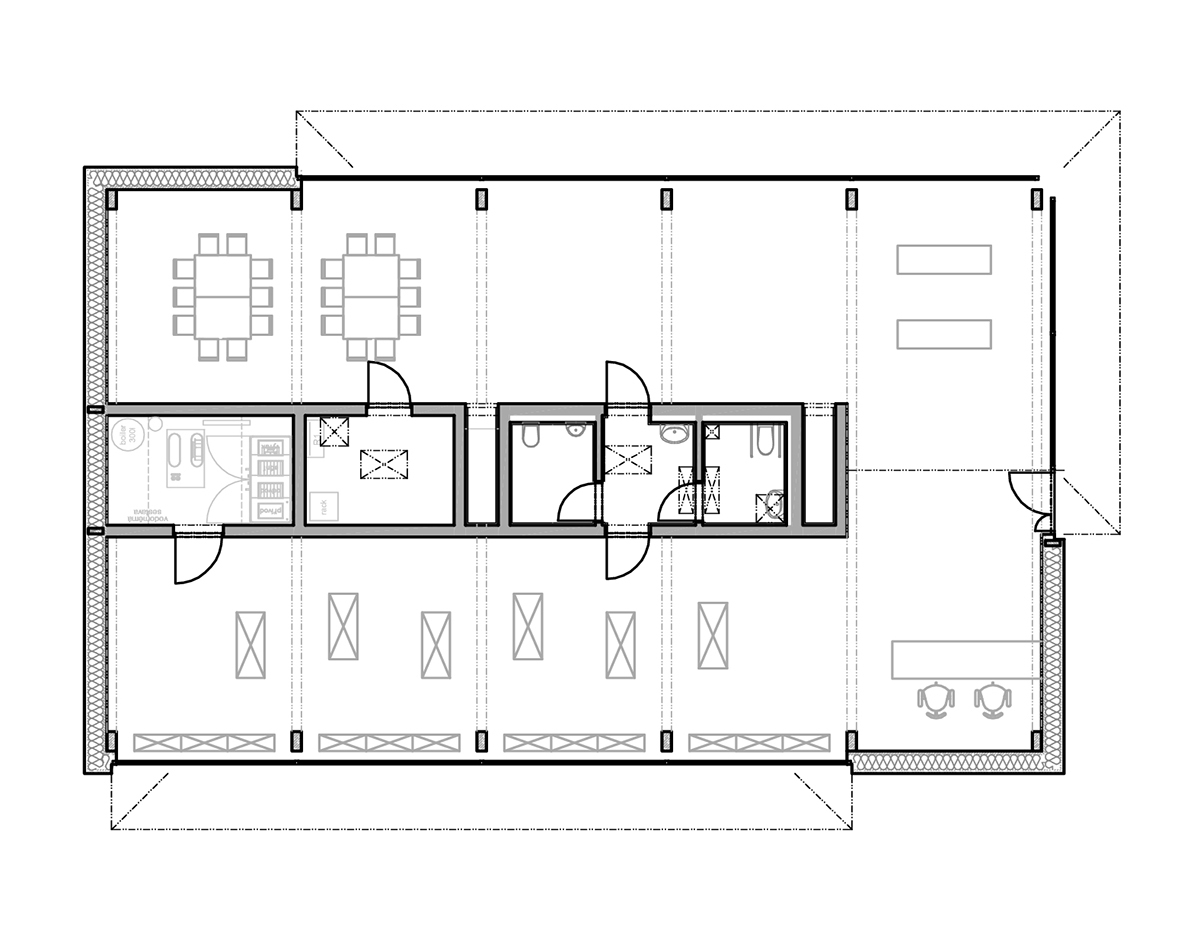
Dům prezentující unikát zdejší přírody nemůže být z logiky věci jiný, než v nejvyšším ekologickém standardu s nízkoenergetickým statutem. Proto byla pro obvodový plášť použitá výhradně dřevěná konstrukce s ekologickým izolantem. Tato slupka tímto způsobem splňuje nejlepší tepelně technické vlastnosti, protože sám dřevěný konstrukční materiál má velký tepelný odpor. Ve spojitosti s tepelným izolantem dostáváme velmi kvalitní izolační obvodový plášť.
Naopak má takto stavebně řešený dům minimální akumulační schopnost, takže velmi rychle reaguje na výkyvy počasí. Zvláště v létě se přes den velmi rychle přehřeje a musí se neekologicky dochlazovat. Z tohoto důvodu jsme doprostřed objektu, daleko od ochlazovaného obvodového pláště, umístili betonový černý kvádr ležící zcela na tepelné izolaci, který zajišťuje tepelnou stabilitu. Tímto doplněním funguje energeticky dům výborně.
Zároveň betonový kvádr s obtisknutou strukturou svisle kladených dřevěných prken, v sobě ukrývá sociální zázemí, sklady a všechny potřebné technologie vydávající hluk, což díky betonové hmotě je velmi dobře odstíněno. Vložený objekt celý prostor rozděluje na vstupní, výstavní a výukovou část. Stává se jakýmsi sarkofágem umístěným v chrámovém prostoru dřevěné obvodové konstrukce. Při samotném doteku rukou necítíte chladnou podobu betonu, ale máte pocit, že se dotýkáte nějakého plastového odlitku, který má teplotu vnitřního prostoru. Beton se tak stal naprostou součástí celé stavby, nechová se typicky, ale zcela se přizpůsobil samotnému domu, i co se povrchové teploty týče.







